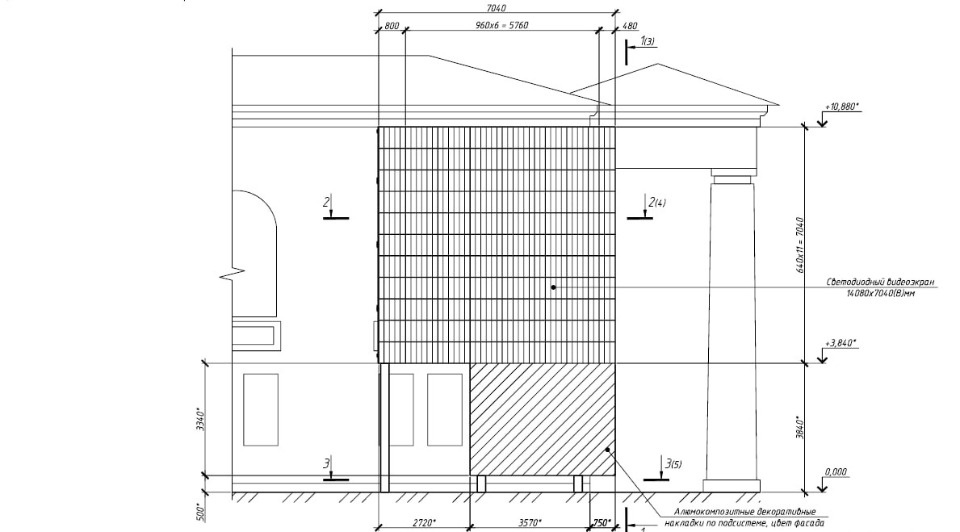
На здании Городского культурного центра Пскова появится огромный угловой светодиодный экран. Об этом сообщается на портале госзакупок, пишет ПАИ.
На здании Городского культурного центра Пскова появится огромный угловой светодиодный экран. Об этом сообщается на портале госзакупок, пишет ПАИ.
Высота экрана превысит 14 метров, длина – семь метров.
Как уточняется в заявке, весить конструкция должна меньше 2,9 тонны.
Подрядной организации предстоит доставить светодиодный экран, осуществить его сборку, монтаж и ввести в эксплуатацию. Завершить работы требуется до 24 декабря.
На закупку экрана из бюджета Пскова выделили порядка 34,5 млн рублей.
Деньгами разбрасываются. Этот экран там вовсе не нужен, будет отвлекать внимание водителей на круговом сложном движении. И не стОит ОН таких денег. Лишь бы куда-то вложить администрации из бюджета, но лишь не пенсионерам, или малообеспеченным семьям. А самое главное идёт СВО, вот куда необходимы средства. Или бы ограждение помочь поменять дивизии на ул.Маргелова, стоит на подпорках, скоро завалится на проезжую часть. Растратчики казны.

